
















The canopy frame is the backbone of any construction, made up of poles and beams that come in different sizes and various different thicknesses. In our projects, we always use well-designed beams that can handle heavier loads and provide dependable support during high winds and snow load events.
We prioritize doing the job right by using engineered materials specifically designed for their purpose, even if it means we may be presenting a higher price to the customer to build it correctly. In Oklahoma, with our strong winds and occasional snow or ice, you need a structure built to last, not hastily constructed with unsuitable building materials.

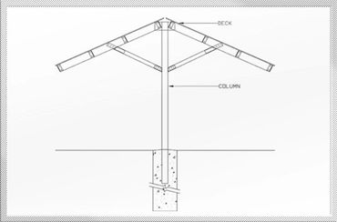
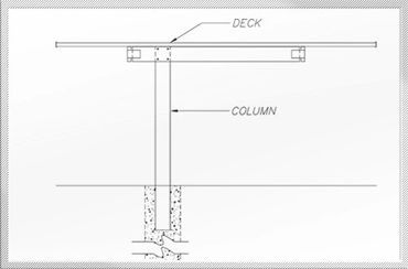
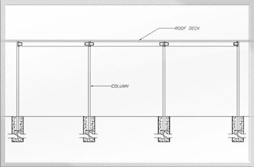
The poles are single most important part when building any type of structure. That is what does all of the heavy lifting and supports the structure. There are various different types of poles made from different types of building materials. These poles are available in different thicknesses and can withstand various different specifications.
There are various different steel posts that are rolled into its final shape and form that are available in various different colors and sizes as well as lengths. then are steel tubing posts that are available in different gauges such as a 3x3 or 4x4 red primed steel that should be painted
Then there are various different extruded aluminum posts in various different sizes and thicknesses as well as color options. A thick wall aluminum post is normally .125 thickness which is about 1/8" inch thick posts.
3x3 Lock seam galvanized steel painted fluted posts are also available

The canopy top coverings and its trim add the finishing to touches to any canopy framing members. Different types of canopies require different types of building materials that are available in different thicknesses and color options from various different building materials providers.
While every type of canopy top has its pros and cons, we are custom builders with over thirty years of experience, offering a wide range of materials like steel, aluminum, wood, Structural Insulated Panels (SIPs), poly, and composites—not just a single option like most other builders offer.
Our offerings are not limited to a single type of building material. We are proficient in utilizing a variety of building materials and often combine them when constructing a particular type of canopy.
And of course, its color.
Let us know your ideas!

Most canopy roof designs are of a single slopped or a (Shed) type design to help shed water off of the roof. It may or may not incorporate some type of a overhang or cantilever overhang. Some designs are a Cable or Hip type of roof design and may be built using pre-designed and engineered trusses made from wood or metal building materials. Without the use of trusses the cable or hip roofs are custom made using custom cut rafters.
A carport, patio cover, pergola, screen room or sunroom can be a great addition and investment to your home. Not only does it provide shade and shelter for your outdoor living space, but also protection from the sun and rain. But before running out and getting one, there are a few things you should know about these structures. These structures can range in size, style and price. You may want to consider what materials you want your structure to be made from, as well as if you would like a built-in or a add-on structure. The budget has everything to do with what type of structure you can build so we always ask you about to save everyone's time.
1 - Budget
2 - Function
3 - Size
4 - Designs
5 - Materials
6 - Permits
7 - Upgrades

A truss roof is a pre-design roof system that are made from various different wood or steel composites with various different pitch rises. The trusses are normally design and made off site and trucked to the build site.
A roof truss is best described as a structural framework of timbers that's designed to provide support for a roof. They're also used to bridge the space above a room. They typically occur at regular intervals, and they're linked by horizontal beams known as purlins.
Though both stick or timber framing rafters or using per designed and engineered truss framing are triangles in shape, the trusses have more triangle webs inside the principal frame. Rafters consist of sloping outer beams which provide support. As the trusses come with a web of triangles inside the main frame, they provide more support than rafters.
There are also "lattice beams" that are manufactured by using structured steel tubing then coated, that are used in a lot of wood structured poles barns. These lattice beam can be ordered and manufactured then shipped. For standard orders allow 4 weeks for special ordered beam allow 6 weeks for delivery.

Aluminum is favored for outdoor applications due to its lighter weight, high strength, excellent corrosion resistance, and low maintenance requirements. Aluminum does not have any zinc within it that allows the steel building materials to Rust like steel does. Little or no ongoing maintenance issues such as painting.



1 - Free Standing or an Attached type of structure?
This question is the first and best way to start distinguishing between these outdoor structures. If your project is freestanding, then it is either a pergola or patio cover. A patio cover can also be attached like an arbor (we’ll go into that difference in question two). Arbors will have posts or columns on one side and be connected to a home/building on the other side. This can be a point of confusion because many blogs, images, and descriptions refer to arbors as being freestanding arches or gateways to a garden or backyard. Some municipalities might require a structure to be attached.
2 - Rafters or a Truss Roof?
Pergolas and arbors use posts connected by joists and rafters for shade and stability, but those rafters don't keep rain or the elements out. It is an open-air type of roof structure.
3- Size of the structure -
This is sort of a trick question: there are no size guidelines differentiating arbors, pergolas, and patio covers. All three structures can be small or expansive based on what you want.
4 - What type of building material is to be used.
5 - Any type of top canopy covering. Today people may want to be look a rustic pergola but still may want to cover with wood, metal or a ploy type of materials.
6 - The color of stain / sealer / paint
7- Cobels and Rafter Tail ends details (Pergola, Arbors)
You won't have to worry about anything, except maybe getting your guests to leave!

Carports and Patio Covers of Oklahoma
www.carportsandpatiocoversofok.com
405-832-0444
An awning that is attached to a building over a glass window or door with top support often called structs. Meanwhile, a canopy is a structure that is supported with that has posts or it has legs below that is supporting the structure.

Carports and Patio cover of Oklahoma
www.carportsandpatiocoversofok.com
405-832-0444

















Introductory models can be as basic a Red Steel, or the more advanced Galvanized steel or protected steel coating framing members. Much like a metal building and made from the very same building components.
Might use larger size of metal framing depending on the size of the cover or decorative factory painted poles to dress them up a little, Choice of nervous different colors.
Factory machined rolled aluminum materials that is a single ply product offering system a built-in guttering system that has numerous different design and engineering spics. Numerous different build options with larger framing components such as beam and pole options. More expensive with nicer fit in the finish details and trim options are available in numerous different color options and less maintenance will not rust!
More advanced building materials with a 3-6-inch-thick high density form core panel that can have various different outside claddings such as aluminum, steel or plywood attached to it. First design as far back as the 1930 mainly has been used in the Cool Storage or Sunroom industry but has become more mainstream building materials of today. Less heat transfer though the building materials resulting in a cooler solid top type of canopy.
The newer kids on the block in the patio covering offerings the capability of opening or closing the canopy slats manually or can be more optimate with operations from our cellular phone apps. High end LED lighting and overhead heaters. Some even over a retriable roof that available in some units. Almost all are made from aluminum metal, and some are powered coat for a long-life finish. Mainly used in the hospitality or food industry such as restaurants
he best timber for outdoor construction depends on the specific requirements of your project, such as durability, aesthetics, and budget. More premium outdoor cedar wood or redwood cost more than say a pine wood structure. The larger the open spans between the poles and beams requires larger timbers. As Framer by trade, we always say there is nothing prettier than a nice wood framed structures, but they cost more than any metal structure and always requires ongoing upkeep such as staining or painting
Today it is possible to get a hybrid building material such as aluminum core with vinyl coating on the exterior building products, composit woods, Fiberglass compoints are also used in poles and pergola products.
You can also get a aluminum build product that is made to look like wood called Alumawood or Elitewood so you can get the look of wood but the advantage of the aluminum building materials we use it a lot as trim.
The design of structure is very important, and it largely depends on the placement of poles in any type of canopy. The general rule of thumb is to place poles every 10 feet of open span, but this isn't always feasible. In such cases, heavier and larger poles and beams are required to span greater distances. Engineering often involves designing canopies with larger metal beams or wooden LVL beams or trusses to safely cover longer spans between poles. Additionally, the poles may need to be increased in size and thickness. After all, the poles and beams handle all the heavy lifting in any structure.
An 8-inch C-purlin can span up to 25 feet, but the maximum span depends on several factors, including the purlin's gauge thickness, the purlin spacing, the load it needs to support (like snow load), and local building codes. For critical structural applications, a structural engineer should always be consulted to ensure safety and compliance with local codes. Factors that influence the span,
Example spans for different14 ga purlin sizes for roofs:
Recommendation:
While 25 feet is a common maximum span, it is crucial to verify the exact span with a structural engineer for your specific project to account for all variables and ensure the structural integrity of your building. Just because they might sale a longer spans C or I beam purlins doesn't mean it is safe to use it.

Carports and Patio Cover of Oklahoma
www.carportsandpatiocoversofok.com
405-832-0444







An architect offers a range of benefits that can help elevate your project, such as:
How much does a design cost? Starts with a 3D Design which might cost as low as $1,000.00 or can run as high as $2,500.00 for a design professional.
We build all types of awnings, arbors, pergolas, porches, pavilions, sunrooms and screen rooms, decks and more.

If you got a project and you want to get the good stuff cheaper then give us a chance to bid the project and save. We don't just one type, one size, one size, one design we build them all. Call us today and save!